画像:ご宴会

200名様まで収容可能な
パーティ会場を完備、国際通り沿い、
牧志駅から徒歩3分の好立地

華やかな慶びの宴。和やかな語らいの場として、
大宴会場「オリオン」をはじめ、様々なニーズに対応した全4つの宴会場・会議室を完備。
シェフがほどこすホテル特製料理や行き届いたサービスでいつまでも心に残る宴席をお約束いたします。

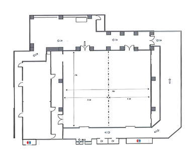
2F 大宴会場「オリオン」

画像:大宴会場「オリオン」

立食形式で200名様まで、スクール形式で180名様までご利用いただける大会場です。

収容人数 面積 縦×横×天井 円卓 立食 スクール シアター
全室 97坪(323㎡) 17×19×3.1 200 200 180 230
半室 48坪(161㎡) 17×9.5×3.1 60 180 80 150

※横スクロールにてご覧いただけます。

画像:間取り図

会場間取り

画像:会場間取り

立食形式

画像:立食形式の間取り図

立食形式

画像:食形式

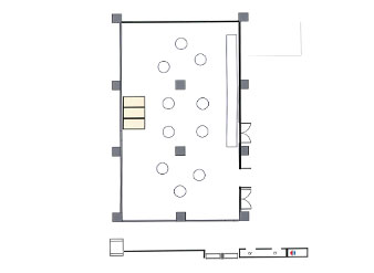
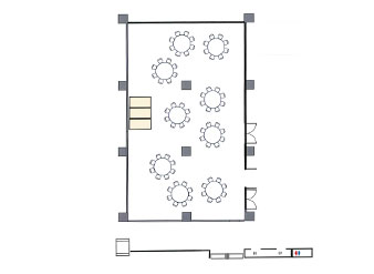
円卓形式

画像:円卓形式の間取り図

円卓形式

画像:円卓形式

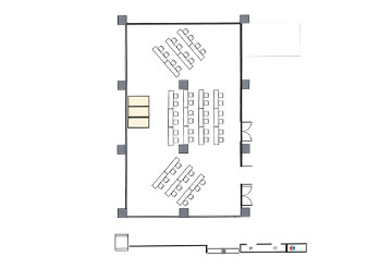
スクール形式

画像:スクール形式の間取り図

スクール形式

画像:スクール形式

※クリックで大きいサイズをご覧になれます。

2F 中宴会場「フクギ」

画像:中宴会場「フクギ」

立食形式で最大50名様、スクール形式で最大42名様までご利用いただける中宴会場です。分割し、少人数での宴会、会議に最適です。

収容人数 面積 縦×横×天井 円卓 立食 スクール シアター
全室 34坪(115㎡) 6.3×18.3×2.6 60 50 42 80
A 10坪(36㎡) 6.3×5.8×2.6 20 - - -
B 12坪(43㎡) 6.3×6.8×2.6 20 - - -
C 9坪(30㎡) 6.3×4.8×2.6 10 - - -
A/B 25坪(82㎡) 6.3×12.5×2.6 40 40 30 52
B/C 24坪(79㎡) 6.3×11.6×2.6 30 30 30 40

※横スクロールにてご覧いただけます。

画像:間取り図

会場間取り

画像:会場間取り

立食形式

画像:立食形式の間取り図

立食形式

画像:立食形式

円卓形式

画像:円卓形式の間取り図

円卓形式

画像:円卓形式

スクール形式

画像:スクール形式の間取り図

スクール形式

画像:スクール形式

※クリックで大きいサイズをご覧になれます。

2F 小宴会場「デイゴ」

画像:小宴会場「デイゴ」

着席スタイルで20名様までご利用いただける小宴会場です。少人数でのご会食からビジネスの会議まで、ご要望に合わせて幅広くご利用いただけます。

収容人数 面積 縦×横×天井 円卓 立食 スクール シアター
13坪(44㎡) 8.1×5.5×2.5 20 - 24 30

※横スクロールにてご覧いただけます。

画像:間取り図

会場間取り

画像:会場間取り

対面形式

画像:対面形式の間取り図

対面形式

画像:対面形式

※クリックで大きいサイズをご覧になれます。

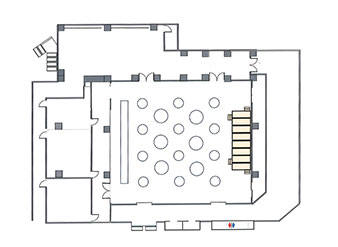
B1F 多目的スペース「ガジュマル」

画像:多目的スペース「ガジュマル」

立食スタイルで最大130名様までご利用いただける多目的スペースです。レセプションや会議、ご会食など多彩にご利用いただけます。全体を二分割にしてのご利用も可能です。

収容人数 面積 縦×横×天井 円卓 立食 スクール シアター
全室 74坪(243㎡) 11.9×20.4×2.4 120 130 96 140
A 29坪(95㎡) 11.9×8×2.4 40 40 36 60
B 44坪(146㎡) 11.9×12.3×2.4 70 60 - -

※横スクロールにてご覧いただけます。

画像:立食形式の間取り図

会場間取り

画像:会場間取り

立食形式

画像:立食形式の間取り図

立食形式

画像:立食形式

円卓形式

画像:円卓形式

円卓形式

画像:円卓形式

スクール形式

画像:スクール形式の間取り図

スクール形式

画像:スクール形式

※クリックで大きいサイズをご覧になれます。

Contact Us

TEL.098-866-5523
(宴会予約)
10:00~18:00 / 土・日曜、祝日を除く